PREMIUM
Venta local con licencia de BAR-WISKERIA TOP-LESS en Les Corts
Barcelona (LES CORTS) - REF. 1139

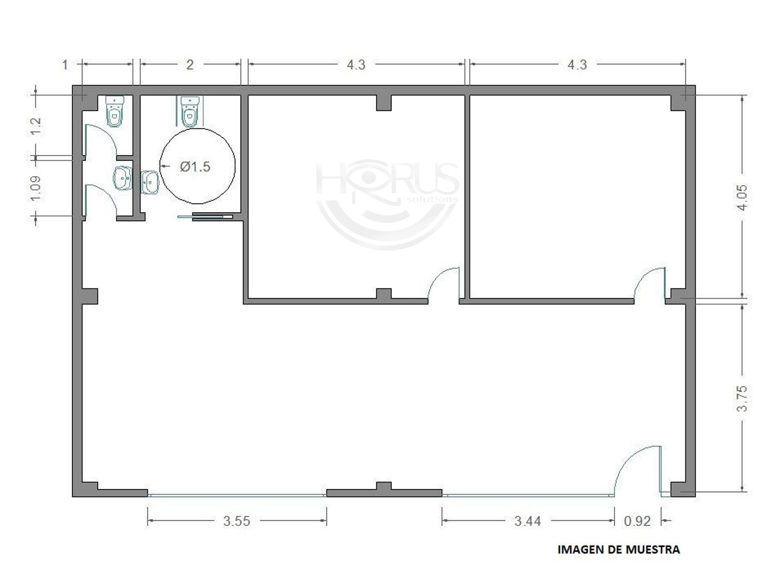
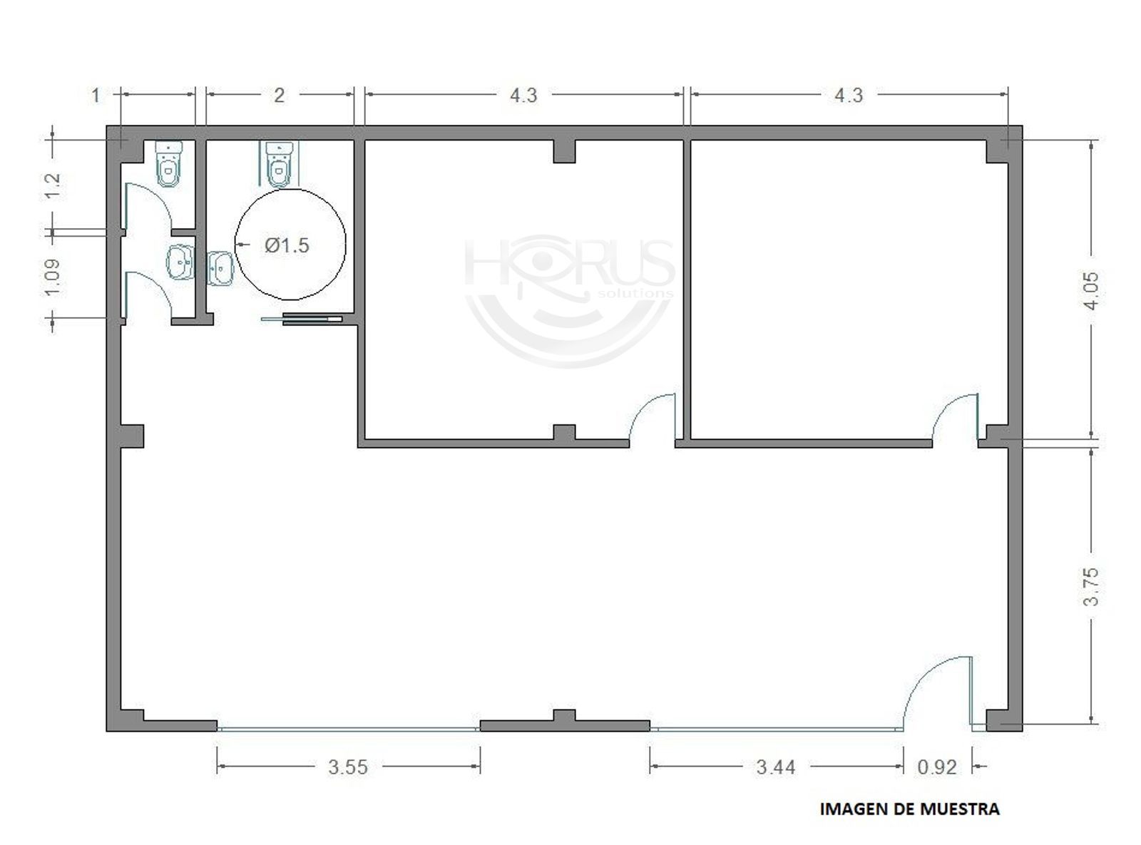
178 m2

3
venta: 320.000 €
Descripción

REFERENCIA: 1139

En HORUS SOLUTIONS, expertos en traspasos y venta de locales de hostelería y ocio en Barcelona, presentamos en venta este exclusivo local con LICENCIA DE BAR-WISKERIA TOP-LESS, una autorización actualmente muy limitada y de altísimo valor en la ciudad.

Ubicado en el Distrito de les Corts,  el local ha operado durante años como un espacio de ocio consolidado, con shows en vivo y ambiente adulto, dentro del marco legal correspondiente y con todas las adaptaciones exigidas para locales de pública concurrencia y espectáculo.

Este establecimiento combina el atractivo de un pub musical clásico con el magnetismo de un local de entretenimiento visual en directo, ofreciendo una experiencia única y diferenciada en Barcelona. Dispone de escenario habilitado, barra amplia, zona lounge, cabina de sonido e iluminación profesional.

Una oportunidad excepcional para inversores o profesionales del sector que busquen un negocio con licencia difícilmente replicable y alto potencial de rentabilidad.

✨ Características del local:

✅ Superficie aproximada: 180 m²

✅ Licencia: BAR-WISKERIA TOP-LESS 

✅ Aforo: 75 personas aprox.

✅ Escenario y cabina de sonido profesional

✅ Iluminación ambiental y de show

✅ Barra equipada y zona lounge

✅ Aire acondicionado y mobiliario completo

✅ Actualmente no está en funcionamiento


📍 Zona y entorno:

Ubicado en el Distrito de les Corts, una de las calles con mayor tradición de ocio en el distrito, rodeado de restaurantes, hoteles y locales nocturnos consolidados.

Su proximidad al Camp Nou, Avinguda de Josep Tarradellas y Gran Via de Carles III garantiza un flujo constante de público local y visitantes.

El entorno combina el ambiente elegante de Les Corts con la vitalidad del ocio barcelonés, ideal para proyectos selectos y exclusivos.


📄 Condiciones del venta:

💰 Venta: 320.000 euros


🔑 Negocio llave en mano, con licencia de BAR-WISKERIA TOP-LESS  vigente, ideal para profesionales del sector del ocio que busquen un local singular, consolidado y con valor añadido real por su autorización excepcional.


📲 Contáctanos para más información y visita confidencial:

📞 602 366 826 – HORUS SOLUTIONS

📩 info@horussolutions.es


🌐 www.horussolutions.es 


📍 Calle Manso 17, Entresuelo 3ª – 08015, Barcelona

Características
Precio Venta 320.000 €
Construidos 178 m2
Útiles 170 m2
Precio/m² 1.798
Baños 3
Estado BUENO
Aire acondicionado
Salida de humos No
Calificación Energética (A) VER
Luz
Agua
Internet
Vídeos
Escalas de eficiencia


-
-

Tu agente
Oficina
Contáctanos

Si deseas más información sobre esta propiedad, por favor, rellena el formulario.

 Sí, he leído y/o acepto las Condiciones de uso y la Política de privacidad