Ficha
PREMIUM
EL DINERO EN BARCELONA SE PIERDE EN OBRAS Y LICENCIAS: AQUÍ ESO YA ESTÁ HECHO
Barcelona (SANT MARTÍ) - REF. 1227

98 m2

1
traspaso: 145.000 €
Descripción

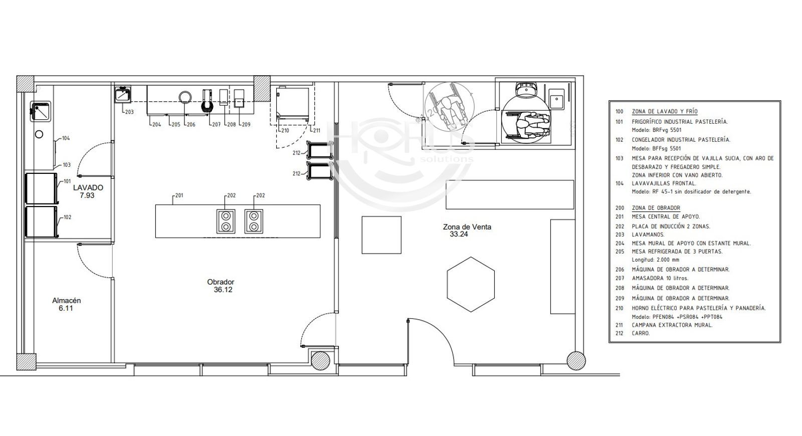
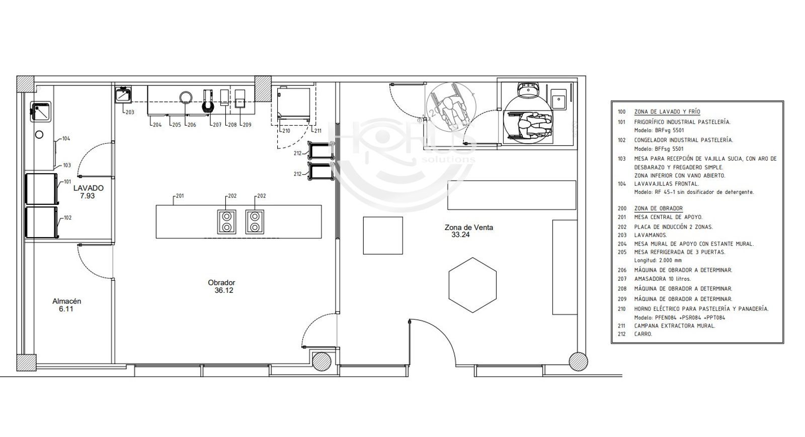
HORUS SOLUTIONS REF.- 1227 - CARRER D'ESPRONCEDA - SANT MARTÍ. Hay locales que se venden por relato, y hay locales que se venden porque el trabajo duro ya está hecho. Activo de 98m2 con salida de humos y obrador operativo. Aquí no entras a improvisar. Aquí entras sobre una estructura ya construida.

💰 EL ACTIVO

  • 98 m2 
  • Licencia A5.1 pastelería y repostería
  • Obrador
  • Salida de humos
  • Reforma integral nueva
  • Maquinaria prácticamente nueva
  • Local listo para operar

👉 Este es uno de esos activos que un comprador con visión sabe leer rápido: obrador montado, licencia específica, salida de humos, maquinaria prácticamente nueva, reforma integral ejecutada y contrato largo. Aquí no entras a improvisar, aquí entras sobre una estructura ya construida.

💸 CONDICIONES

  • Traspaso: 145.000€
  • Alquiler: 2.166€/mes IVA incluido
  • Contrato: 10 años

Ubicado en Sant Martí, en una zona funcional, conectada y con movimiento real de barrio, este local no depende de una postal turística para tener sentido. Tiene lo que importa de verdad: accesibilidad, tejido residencial, consumo de proximidad, oficinas, gimnasios y recorrido operativo para quien sabe explotar producción, recogida, takeaway y punto de venta.

Este local no se tiene que leer como una pastelería que hoy factura mucho. Se tiene que leer como un activo técnico serio, preparado para que un operador con criterio lo convierta en un negocio mucho mejor explotado.

En Barcelona, encontrar un local que ya tenga hechos los errores caros del principio vale dinero, y este local precisamente juega ahí: en el ahorro de tiempo, de obra, de riesgo y de implantación.

👉 No es un local para quien busca fantasía, es un local para quien entiende lo que cuesta abrir de cero en Barcelona.


📲 Contáctanos para más información o agendar una visita:

📞 697 892 756 – HORUS SOLUTIONS

📩 info@horussolutions.es

🌐 www.horussolutions.es 

📍 Calle Manso 17, Entresuelo 3ª – 08015, Barcelona

Características
Construidos 98 m2
Útiles 88 m2
Baños 1
Cocina Amueblada
Estado BUENO
Aire acondicionado
Salida de humos
Adaptado
Calificación Energética (A) VER
Luz
Agua
Teléfono
Internet
Alarma interior
Acceso discapacitados
Escalas de eficiencia


-
-

Tu agente
Oficina
Contáctanos

Si deseas más información sobre esta propiedad, por favor, rellena el formulario.

 Sí, he leído y/o acepto las Condiciones de uso y la Política de privacidad
Inmuebles similares:
 
Ref. 1236  360 m2

HORUS SOLUTIONS, REF.- 1236 - Se traspasa cadena de pastelería-panadería con 3 locales en Barcelona, ubicados en el Distrito de Gràcia y  Horta-Guinardó, en funcionamiento, clientela, posicionamiento real de barrio y una base comercial que permite vender desde el día uno. Aquí no compras una persiana. Compras una red.

 
Ref. 1241  55 m2  2

HORUS SOLUTIONS. REF.-1241- CARRER FRANCESC BALCELLS, EL PRAT DE LLOBREGAT. En El Prat de Llobregat no aparece todos los días un activo así. Aquí no estás entrando en un simple bar cafetería de barrio. Aquí entras en una operación con doble motor de ingresos: venta directa + catering corporativo, con una estructura ya rodada, y capacidad real de continuidad.